Tổng hợp kích thước đặt ống chờ tiểu nam áp dụng phổ biến hiện nay

CEO Fuji NguyễnCEO Fuji Nguyễn

10 Tháng Tám 2024

796

Bồn tiểu nam với đa dạng kiểu dáng là thiết bị vệ sinh ngày càng được sử dụng phổ biến. Mỗi loại sẽ có kích thước đặt ống chờ tiểu nam tương ứng, đảm bảo hiệu quả hoạt động của thiết bị. 

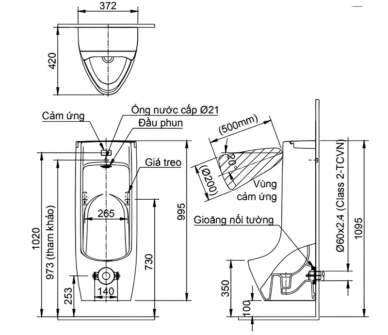
1. Kích thước đặt ống chờ tiểu nam thông dụng 

Ống chờ tiểu nam có vai trò thoát nước tiểu và nước xả từ bồn cầu. Thông thường, ống chờ được lắp đặt cùng ống chờ nước thải. Khi sử dụng xong, nước tiểu và nước xả cùng theo ống chờ tiểu xả trôi vào hệ thống nước thải của công trình. Kích thước đặt ống chờ tiểu nam phụ thuộc vào từng kiểu bồn tiểu nam

1.1. Với bồn tiểu nam treo tường 

Tiểu nam treo tường có nhiều kích cỡ từ nhỏ đến lớn. Thông thường, để đảm bảo sự tiện lợi khi sử dụng, kích thước chiều cao bồn phải đạt khoảng 60 – 90cm. Khi lắp đặt, khoảng cách từ tiểu nam đến mặt sàn cũng cần ở trong mức 45 –  65cm. Kích thước này phù hợp với chiều cao của đa số người Việt Nam. Dựa trên thông số này, kích thước đặt ống chờ tiểu nam sẽ ở mức 50 – 60cm là hợp lý. 

1.2. Với bồn tiểu nam đặt sàn 

Thực tế, tiểu nam đặt sàn ít phổ biến hơn. Chúng có kích thước lớn nên cần không gian lắp đặt đủ rộng. Hiện nay, kích thước để lắp đặt loại bồn này thường là 114 x 37 x 42cm. Theo đó, kích thước đặt ống chờ tiểu nam dao động từ 100 – 110 cm

Kích thước đặt ống chờ tiểu nam phụ thuộc vào từng kiểu bồn tiểu nam

Kích thước đặt ống chờ tiểu nam phụ thuộc vào từng kiểu bồn tiểu nam

2. Hướng dẫn đặt ống chờ tiểu nam đúng kỹ thuật 

Biết được kích thước chờ tiểu nam, bạn cũng nên tìm hiểu thêm về cách lắp đặt chúng đúng tiêu chuẩn. Việc này thực ra cũng không quá khó, để lắp bồn tiểu nam treo tường chỉ cần thực hiện theo 5 bước dưới đây: 

2.1. Bước 1: Xác định vị trí để đặt ống chờ cấp

Đây là bước quan trọng quyết định đến cả quy trình lắp đặt. Bạn chú ý quan sát một chút là có thể tìm được chính xác vị trí đặt ống chờ và ống thoát nước. Lưu ý, không được để cặn bẩn lẫn vào ống, dễ gây nên tắc nghẽn

2.2. Bước 2: Lắp mặt bích gắn tường

Đầu tiên, bạn cắt ống thải nước rồi lắp ống chữ T vào phía sau mặt bích. Sau đó, bạn dùng keo chuyên dụng phết vào mặt bích gắn tường và mặt trong ống nước thải. Tiếp đến, bạn nhét từ từ ống chữ T và gắn thật chặt vào phần lõm sau lưng của mặt bích tránh tình trạng rò rỉ trong quá trình sử dụng. Đừng quên dùng keo lấp đầy các rãnh hở ở phần ống thoát nước. 

2.3. Bước 3: Cố định giá đỡ phía sau tiểu nam

Bạn lấy chiều cao từ tâm thải nước khớp với tâm lỗ dài giá đỡ sau và phân bố cân bằng 2 bên. Điều quan trọng nhất là 2 giá đỡ hậu phải thẳng hàng, song song với mặt đất. Trường hợp tường bê tông, bắt buộc phải dùng thêm vít nở. Ở bước này, bạn chú ý kiểm tra xem ốc mặt bích đã lọt vào lỗ ốc của tiểu nam chưa. Nếu đã được, bạn tháo ra, cố định giá đỡ hậu và dùng ốc ren cố định ở từng giá đỡ. 

2.4. Bước 4: Lắp vòng đệm

Tiến hành lắp vòng đệm vào lỗ thoát nước của bồn tiểu nam và treo vào giá đỡ. Khi thực hiện, bạn cần đảm bảo vòng đệm được đặt vào đúng mặt đáy lỗ thải nước và áp cạnh tường. Bạn không nên siết vòng đệm quá chặt tránh nguy cơ làm vỡ bệ tiểu nam. 

2.5. Bước 5: Lắp phụ kiện cấp nước

Bạn thực hiện lắp van xả nối liền với ống cấp nước ở trên mặt tường. Sử dụng băng dính cuốn phần trong ren, dùng vải quấn phần ngoài để bảo vệ bề mặt không bị trầy xước. Sau đó, bạn lắp piston thẳng giúp dễ dàng nâng lên hạ xuống theo nhu cầu. 

Tiếp theo bạn nối đường cấp nước giữa van xả và bồn tiểu. Chú ý khi làm phải đẩy sâu vào 10 – 20mm để giữ bồn chắc chắn cũng như giảm nguy cơ rò rỉ nước khi dùng. Ngoài ra, bạn tuyệt đối không cắt phần mép ống. Về cơ bản, đến đây bạn đã hoàn thành việc đặt ống chờ tiểu nam.  

Tham khảo bản vẽ hướng dẫn lắp đặt chờ bồn tiểu nam

Tham khảo bản vẽ hướng dẫn lắp đặt chờ bồn tiểu nam

3. Địa chỉ mua bồn tiểu nam chính hãng

Ngoài kích thước đặt ống chờ tiểu nam, bạn cũng cần quan tâm đến chất lượng bồn tiểu. Do đó, tìm được địa chỉ uy tín mua bồn tiểu nam chính hãng không kém phần quan trọng. Nếu bạn đang băn khoăn thì KUTO chính là gợi ý hoàn hảo nhất. 

Với sứ mệnh mang đến cho khách hàng những thiết bị vệ sinh chuẩn Nhật, an toàn cho người dùng, thân thiện với môi trường, KUTO cam kết về sản phẩm bồn tiểu nam của mình. KUTO sẵn sàng cung cấp hóa đơn, giấy chứng nhận chất lượng nếu khách hàng có yêu cầu. 

Hiện nay, có 2 mẫu sản phẩm bồn tiểu nam KUTO được ưa chuộng là:

  • Bệ tiểu nam xả nhấn KUTO kích thước 330 x 290 x 630mm, kèm theo phụ kiện ống nối van xả và xi phông, giá 4.477.000 đồng. 
  • Bệ tiểu nam xả nhấn KUTO kích thước 355 x 300 x 685mm, giá 2.080.000 đồng. 

Để biết kích thước đặt ống chờ bồn cầu KUTO nói chung và với 2 sản phẩm trên nói riêng, bạn liên hệ với KUTO qua hotline hoặc email để được tư vấn chi tiết. 

Liên hệ ngay với KUTO để được tư vấn kích thước đặt ống chờ tiểu nam tương ứng

Liên hệ ngay với KUTO để được tư vấn kích thước đặt ống chờ tiểu nam tương ứng

Kích thước đặt ống chờ tiểu nam phụ thuộc vào kiểu dáng, kích thước từng loại bồn. Mong rằng qua bài viết bạn đã nắm được thông tin, biết cách đặt ống chờ đúng chuẩn và mua được bồn tiểu nam chất lượng. 

Xem thêm: 

CEO Fuji Nguyễn
CEO Fuji Nguyễn

CEO Fuji Nguyễn là doanh nhân, hiện đang là Giám Đốc công ty Kuto Nhật Bản, có nhiều năm kinh nghiệm trên thương trường.