TOP 10+ cách xử lý mùi hôi nhà vệ sinh đơn giản, hiệu quả nhất
01 Tháng Một 2024Kích thước bồn tắm của 4 loại bồn phổ biến nhất hiện nay
Kích thước bồn tắm là một trong những yếu tố quan trọng hàng đầu khi bố trí không gian phòng tắm. Tùy vào diện tích, nhu cầu của mỗi gia đình mà lựa chọn loại bồn tắm có kích thước phù hợp. Bài viết dưới đây sẽ giúp bạn nắm rõ kích thước các loại bồn tắm thông dụng để đưa ra quyết định chính xác nhất.
1. Các tiêu chí chọn bồn tắm
Mua bồn tắm tưởng đơn giản nhưng lại khiến nhiều người phải đau đầu. Trước khi tìm hiểu kỹ hơn về kích thước bồn tắm, cùng điểm qua một số tiêu chí giúp bạn chọn được sản phẩm phù hợp.
- Chọn theo nhu cầu: Đây là yếu tố đầu tiên nên lưu ý. Bởi bồn tắm phải thực sự phù hợp với nhu cầu mới đem đến cho bạn sự thoải mái khi sử dụng. Nhu cầu ở đây liên quan đến mục đích, số lượng người,…
- Chọn theo kiểu dáng: Hiện nay có rất nhiều loại bồn tắm khác nhau. Gia chủ cần chọn kiểu dáng bồn tắm hợp “gu” và phong cách thiết kế của ngôi nhà.
- Chọn theo kích thước: Kích thước bồn tắm nên tương ứng với diện tích phòng tắm. Kích thước hợp lý đảm bảo tính thẩm mỹ lại không gây lãng phí điện nước.

Bạn nên chọn bồn tắm có kích thước phù hợp với không gian nhà tắm và nhu cầu sử dụng của gia đình
- Chọn theo chất liệu: Độ bền, độ an toàn và dễ dàng vệ sinh của bồn tắm đều phụ thuộc vào chất liệu. Bồn tắm chất liệu tốt vữa giúp sản phẩm kéo dài tuổi thọ vừa cho người dùng trải nghiệm thư giãn tuyệt vời.
- Chọn theo chức năng: Trước khi mua, bạn nên xem xét kỹ mục đích sử dụng của mình và gia đình là gì. Bạn cần một chiếc bồn tắm bình thường hay phải có công năng massage, hãy suy nghĩ để chọn sản phẩm phù hợp.
- Chọn theo giá thành: Yếu tố này đương nhiên không thể không cân nhắc. Bạn nên cân đối giữa nhu cầu với điều kiện kinh tế chọn được loại bồn tắm giá rẻ ưng ý nhất.
2. Kích thước bồn tắm của 4 loại bồn thông dụng nhất
Như đã chia sẻ ở phần trên, kích thước bồn tắm là một trong những yếu tố không thể bỏ qua. Để mua được sản phẩm bồn tắm phù hợp, bạn cần nắm rõ kích thước của chúng mới có thể đưa ra quyết định chính xác.
2.1. Kích thước bồn tắm đứng
Bồn tắm đứng hay còn gọi là cabin tắm đứng thường được ưu tiên thiết kế cho những phòng tắm có diện tích hạn chế. Bởi chúng được xây từ các vách kính trong suốt. Dưới đây là một số kích thước cabin tắm đứng thông dụng:
- Kích thước bồn tắm đứng nhỏ: Chiều dài và chiều rộng từ 800 – 900mm, chiều cao từ 1800 – 2100mm. Việc thiết kế chiều dài, chiều rộng tương đương nhau tạo sự cân đối cho sản phẩm.
- Kích thước bồn tắm đứng vừa: Đây là kích thước phù hợp với phần lớn không gian phòng tắm của các hộ gia đình. Trong đó, hai kích thước thông dụng nhất là 900x900x1850mm; 1000x1000x2000mm.
- Kích thước bồn tắm đứng lớn: Nếu phòng tắm rộng rãi thì cabin tắm đứng loại lớn sẽ giúp quá trình sử dụng thoải mái hơn. Một vài kích thước phòng tắm vách kính đứng được ưa chuộng hiện nay: 1100x 1100 x 1850mm, 1100x800x1850mm, 1100x1200x2100mm,…

Tham khảo 3 kích thước bồn tắm đứng: Cỡ nhỏ, cỡ vừa và cỡ lớn
2.2. Kích thước bồn tắm góc
Thực tế, bồn tắm góc đang là xu hướng lựa chọn của nhiều gia đình nhằm tối ưu không gian sử dụng. Kích thước của dòng bồn tắm này cũng vô cùng đa dạng với 3 nhóm phổ biến bao gồm:
- Bồn tắm góc nhỏ: Hai kích thước phổ biến nhất nhóm này là bồn tắm góc 900x900x340mm và bồn tắm góc 1200x1200x600mm. Ngoài ra, bạn có thể chọn loại 900x900x340 mm, 950x950x500mm, 1100 x 1100 x 600mm,…
- Kích thước bồn tắm góc trung bình: 1500x1500mm (chiều dài dưới 1500mm), 1350x1400mm (chiều dài dưới 1400mm), 1550x1600mm (chiều dài dưới 1600mm).
- Kích cỡ bồn tắm góc lớn: 1650x1650mm (chiều dài dưới 1700mm), 1800x2100mm (chiều dài trên 1700mm).
2.3. Kích thước bồn tắm chữ nhật
Trên thị trường hiện nay, bồn tắm nằm là loại được khách hàng chọn nhiều nhất. Điều này lý giải vì sao kích thước bồn tắm chữ nhật cũng đa dạng nhất. Cụ thể:
- Bồn tắm loại nhỏ: Kích thước chiều dài dao động từ 1200 – 1500mm, chiều rộng từ 750 – 850mm, chiều cao khoảng 600mm.
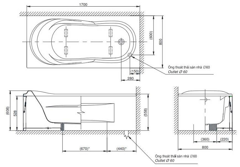
- Bồn tắm cỡ vừa: Kích thước chiều dài khoảng 1600-1700mm, chiều rộng từ 750 – 900mm, chiều cao dao động 600 – 680mm.
- Bồn tắm cỡ lớn: Chiều dài có kích thước trong khoảng 1800 – 1880mm, chiều rộng từ 800mm – 1850mm, chiều cao từ 600mm – 750mm.

Bồn tắm chữ nhật cũng có 3 kích thước nhỏ, vừa và lớn
2.4. Kích thước bồn tắm tròn
Không thể phủ nhận sự sang trọng, tinh tế mà bồn tắm tròn mang lại cho phòng tắm của bạn. Dòng sản phẩm bồn tắm cao cấp này cũng đang có mặt trên thị trường với kích thước chiều cao phổ biến từ 550 – 600mm, đường kính từ 1500 – 1800mm. Trong đó, kích thước bồn tắm tròn được lựa chọn nhiều nhất từng loại là: 1510 x 1510 x 580mm (loại nhỏ), 1650 x 1650 x 600mm (loại vừa), 1700 x 1700 x 600mm (loại lớn).
Ngoài ra, nhiều người còn băn khoăn về kích thước bồn tắm sục. Thực chất, bồn tắm sục là bồn tắm nằm tích hợp các mắt sục nước xung quanh và hệ thống sục thủy lực phía dưới. Vì thế, kích thước loại bồn tắm này cũng nhiều kích thước như các loại bồn tắm góc, bồn tắm tròn, bồn tắm chữ nhật đã được đề cập.
3. Địa chỉ mua bồn tắm chất lượng
Ngoài kích thước bồn tắm, địa chỉ mua bồn tắm chất lượng, uy tín cũng là vấn đề nhiều người quan tâm. Và Kuto – thương hiệu thiết bị vệ sinh Nhật Bản cao cấp chính hãng là đề xuất hàng đầu dành cho bạn.
Kuto hiện đang cung cấp cho khách hàng đa dạng loại bồn tắm, từ bồn tắm truyền thống đến bồn tắm massage hiện đại. Không chỉ đa dạng về kiểu dáng, mẫu mã, bạn cũng có thể tìm được nhiều kích thước bồn tắm thông dụng, hợp với phòng tắm nhà mình. Dưới đây là một số mẫu bồn tắm bán chạy nhất tại Kuto để bạn tham khảo.
- Bồn tắm đặt sàn 038201: Kích thước 1600x750x580mm
- Bồn tắm đặt sàn 028203: Kích thước 1300x700x580mm
- Bồn tắm massage Kuto Pro 078229 – 170: Kích thước 1700x800x600mm
- Bồn tắm massage 058213 WB.MS – 12 vòi sục khí: Kích thước 1700x800x800mm
Ngoài cung cấp đến khách hàng những sản phẩm chất lượng, tính năng thông minh, Kuto còn có các chính sách hỗ trợ người dùng cùng nhiều chế độ hậu mãi khác.

Kuto – đơn vị cung cấp bồn tắm chất lượng, cao cấp hiện nay
Trên đây là những thông tin về kích thước bồn tắm của 4 loại phổ biến nhất hiện nay. Mong rằng bài viết sẽ giúp bạn dễ dàng lựa chọn loại bồn tắm phù hợp với nhu cầu bản thân và diện tích phòng tắm của gia đình. Nếu còn bất cứ băn khoăn, thắc mắc nào khác, hãy liên hệ với Kuto để được tư vấn thêm.
Xem thêm:




