2 cách xác định chiều cao bếp nấu đạt chuẩn phong thuỷ, phát tài phát lộc

CEO Fuji NguyễnCEO Fuji Nguyễn

21 Tháng Mười Hai 2023

1390

Tính toán chiều cao bếp cần đạt dựa trên hai yếu tố đó là sự thuận tiện và phong thuỷ. Tuy nhiên, bạn không nên quá lạm dụng phong thuỷ khi thiết kế bởi đây chỉ là giải pháp hỗ trợ và không thể áp đặt khi thiết kế. Thay vào đó, bạn hãy đặt sự thuận tiện và công năng sử dụng lên hàng đầu.

1. Chiều cao bếp bao nhiêu thì hợp lý?

Tủ bếp được chia làm 2 phần đó là tủ bếp trên và tủ bếp dưới. Theo đó, để tính chiều cao bếp, người ta thường chú trọng phần tủ bếp dưới nhiều hơn do ở khu vực này được lắp đặt bếp nấu, bồn rửa và đặt các vật dụng nấu nướng khác. 

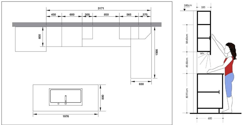
2.1 Chiều cao bếp theo tiêu chuẩn của người Việt 

Theo đó, tủ bếp, vòi rửa lạnh dưới có chiều cao khoảng 80-90cm, tuỳ vào chiều cao người sử dụng. Đối với người Đông Nam Á thì chiều cao được sử dụng phổ biến là 80-85cm. Ngoài ra, khi thiết kế nội thất phòng bếp, người ta còn chú ý đến kích thước của máy rửa bát, lò nướng, lò vi sóng lắp trong bếp.

Ví dụ, nếu người sử dụng bếp có chiều cao 1m67 thì bếp dưới cao 85cm là hợp lý. Nếu gia chủ muốn lắp thêm máy rửa bát, tủ bếp dưới sẽ có chiều cao khoảng 90cm vì máy rửa bát có chiều cao trung bình khoảng 83-85 cm (độ dày bàn đá khoảng 4cm).

Cách tính chiều cao bếp theo chiều cao người sử dụng

Cách tính chiều cao bếp theo chiều cao người sử dụng

2.2 Chiều cao bếp theo phong thuỷ

Bên cạnh tính toán đảm bảo thuận tiện khi sinh hoạt, gia chủ cũng cần cân nhắc đến yếu tố phong thuỷ khi tính chiều cao bàn bếp. Điều này sẽ giúp gia đình thịnh vượng, sung túc, gia chủ làm ăn phát đạt, gặp nhiều may mắn.

  • Về chiều cao: Chiều cao bếp theo phong thuỷ thường nằm trong khoảng 81-86cm sẽ mang lại sự ấm no, tài lộc cho gia đình.
  • Về chiều rộng: Chiều rộng bàn bếp có kích thước chuẩn nằm trong khoảng 48-50cm. Các thành viên có chiều cao trung bình từ 1m55 – 1m65 thì chiều rộng bếp dao động khoảng 55-62cm. Theo phong thuỷ, chiều rộng không nhỏ hơn 48cm và không lớn hơn 62cm.
  • Về chiều sâu: Các chuyên gia đề xuất kích thước chiều sâu chuẩn là 60cm. Lựa chọn chiều sâu cần đánh giá dựa trên chiều dài tay người nấu bếp và có thể tối ưu hóa không gian.
  • Về chiều dài: Không có quy ước cụ thể về chiều dài bàn bếp trong phong thủy. Gia chủ có thể tùy chỉnh theo diện tích và không gian của căn bếp. Trong thiết kế, không đặt nặng yếu tố về chiều dài, cho phép gia đình linh hoạt tính toán để tối ưu hóa diện tích bếp theo nhu cầu sử dụng của mỗi thành viên.
chiều cao bếp

Cách tính chiều cao bàn bếp theo phong thuỷ

Xem thêm: Tham khảo ngay cách đặt bếp trong nhà chuẩn, hợp phong thủy

3. Tính chiều cao bàn bếp cần phụ thuộc vào yếu tố gì?

Ngoài yếu tố phong thuỷ, khi tính chiều cao bếp còn phụ thuộc vào chiều cao người nội trợ, đồ đạc trong gian bếp, kiểu dáng tủ bếp, diện tích phòng bếp, khoang tủ bếp, phong cách thiết kế. Cụ thể như sau:

  • Nếu người nội trợ cao trên 1m6 thì chiều cao bếp dưới dao động khoảng 85-87cm.
  • Kích thước tủ bếp dưới phụ thuộc vào vị trí của kệ úp bát thường có chiều cao dao động khoảng 35-40cm và chiều sâu khoảng 35-40cm.
  • Kích thước khoảng tủ bếp phụ thuộc vào chiều dài tủ bếp và nhu cầu sử dụng. Thông thường, tủ bếp dưới sẽ chia thành chậu rửa, bếp nấu, nơi đựng đồ. 
  • Chiều cao bếp phụ thuộc vào kiểu dáng bếp. Đối với tủ bếp dáng chữ L thì thiết kế mỗi cạnh dài tối thiểu 2m – 3m – 3,5m. Đối với tủ bếp dáng chữ L thì có chiều dài tối thiểu trên 3m.

4. Cần lưu ý gì khi lựa chọn mặt bàn bếp?

Bên cạnh tính toán chiều cao bàn bếp, gia chủ cũng cần chú ý khi lựa chọn vật liệu để đảm bảo sự bền bỉ, an toàn và dễ dàng vệ sinh. Một số yếu tố cần chú ý khi lựa chọn mặt bàn bếp:

  • Khả năng chống thấm: Vì mặt bàn bếp là nơi thường xuyên tiếp xúc với nước, dầu mỡ và thực phẩm, vì vậy, việc chọn vật liệu chống thấm là vô cùng quan trọng. Chất liệu bàn bếp cao cấp giúp hạn chế vết ố, ẩm mốc, tích tụ vi khuẩn, đảm bảo an toàn sức khoẻ cho gia đình. Thông thường, mặt bàn bếp thường được làm bằng đá hoa cương và đá cẩm thạch để đảm bảo chất lượng và độ bền như mong muốn.
  • Về chất liệu: Mặt bàn bếp thường được làm bằng đá tự nhiên, bề mặt bóng cho phép lau chùi, vệ sinh dễ dàng. 
  • Khả năng chịu lực: Mặt bàn bếp cần có khả năng chịu lực tốt, hạn chế tối đa tình trạng rạn nứt, sứt mẻ gây nguy hiểm cho người sử dụng. Đồng thời, các cạnh bàn cần được mài bo tròn để đảm bảo an toàn, đặc biệt là gia đình có trẻ nhỏ.
  • Thiết kế đẹp mắt: Lựa chọn mặt bàn bếp tuỳ theo sở thích gia chủ và phong cách thiết kế nội thất. Tuy nhiên, gam màu trắng đen sẽ đem đến một không gian sang trọng, sạch sẽ. Ưu tiên lựa chọn loại đá bàn bếp có hoa văn đơn giản, tự nhiên.
chiều cao bàn bếp

Bàn bếp thường được làm bằng đá cẩm thạch hoặc đá hoa cương với hoạ tiết đơn giản

Xem thêm: Giải đáp từ A – Z về kích thước chậu rửa bát

4. Một số mẫu thiết kế bếp theo kích thước chuẩn cho bạn tham khảo

Sở hữu một căn bếp đẹp, tiện nghi, phong thuỷ là ước muốn của nhiều gia chủ. Một trong những tiêu chí khi thiết kế nhà bếp đó là tính toán chiều cao bếp đạt chuẩn, phù hợp với nhu cầu người sử dụng. Dưới đây sẽ là một số mẫu nhà bếp cho bạn tham khảo:

chiều cao bếp

Căn bếp rộng rãi với phần bàn đảo được thiết kế riêng biệt, tính toán chiều cao bàn bếp hợp lý theo nhu cầu người dùng

chiều cao bếp

Với những căn bếp nhỏ thì kiểu tủ bếp kịch trần giúp tận dụng tối đa không gian

chieu cao bep

Chiều cao bàn bếp còn phụ thuộc vào các loại máy đi kèm như máy rửa bát, lò vi sóng

chiều cao bếp

Chiều cao bếp nấu cần được thiết kế để đảm bảo phong thuỷ, màu sắc hợp mệnh gia chủ

chiều cao bếp

Thiết kế chiều cao bếp còn phụ thuộc vào diện tích nhà bếp

Hãy nhờ kiến trúc sư tư vấn để lựa chọn chiều cao bếp hợp lý. Bạn không nên tự ý thiết kế bởi nếu có sai sót sẽ ảnh hưởng đến tiến độ thi công và chi phí sửa sai mất khá nhiều.

Công ty Kuto Nhật Bản hiện đang là đơn vị hàng đầu trên thế giới về sản xuất và kinh doanh các thiết bị nhà vệ sinh, nhà bếp, phòng khách chất lượng. Hãy liên hệ ngay với chúng tôi để sở hữu những mẫu sản phẩm có thiết kế độc đáo, độ bền cao với mức giá hợp lý nhất.

Hai cách xác định chiều cao bếp nấu đạt chuẩn phong thủy được chia sẻ trên đây phần nào đã giúp bạn có được một không gian bếp lý tưởng, mang lại tài lộc và may mắn cho gia đình. Hãy nhớ rằng, bên cạnh việc chú trọng yếu tố phong thủy, bạn cũng cần cân nhắc đến sự tiện lợi và phù hợp với chiều cao của người sử dụng chính trong bếp để có được trải nghiệm nấu nướng thoải mái và hiệu quả nhất.

CEO Fuji Nguyễn
CEO Fuji Nguyễn

CEO Fuji Nguyễn là doanh nhân, hiện đang là Giám Đốc công ty Kuto Nhật Bản, có nhiều năm kinh nghiệm trên thương trường.